verkauft
Bestlage in Augsburg-Göggingen
in 86199 Augsburg
- Kaufpreis
- 900.000 €
- Provision
- 3,57 % inkl. MwSt.
- Wohnfläche
- 128 m²
- Grundstücksgröße
- 605 m²
- Nutzfläche
- 16 m²
- Zimmer
- 4
- Schlafzimmer
- 2
- Badezimmer
- 2
- Verfügbar ab
- nach Vereinbarung
- Balkon
- Ja
- Terrasse
- Ja
- Vermarktungsart
- Kauf
- vermarktungsstatus
- verkauft
Beschreibung
Im Herzen Augsburg-Göggingens liegt dieses charmante Einfamilienhaus aus den 30er Jahren des letzten Jahrhunderts. Es befindet sich in gehobener Nachbarschaft und ruhiger Wohnlage.
Der nach Südwesten ausgerichtete Garten ist nahezu uneinsehbar eingewachsen. Am Rande des 605 m² großen Grundstücks befindet sich eine Doppelgarage.
Das Erdgeschoss besticht durch den großzügigen Wohn-/Essbereich mit Zugang zur Terrasse. Die Einbauküche ist im Kaufpreis enthalten. Neben dem Eingangsbereich liegen eine Garderobe sowie ein Gäste-WC.
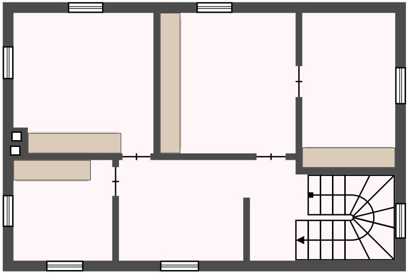
Im Obergeschoss befinden sich ein Kinderzimmer, ein Badezimmer mit Wanne sowie ein Badezimmer mit Dusche und WC. Das Schlafzimmer wird aktuell durch einen Kleiderschrank in den Schlafbereich und den Ankleidebereich geteilt. Von hier aus gelangt man auf den Südwest-Balkon.
Zusätzlich zu den 127,7 m² Wohnfläche im Erd- und Obergeschoss wurde im Dachgeschoss ein weiteres Zimmer mit einer Nutzfläche von ca. 16,13 m² ausgebaut. Daneben befindet sich ein Speicherraum.
Das Haus ist voll unterkellert.
Der nach Südwesten ausgerichtete Garten ist nahezu uneinsehbar eingewachsen. Am Rande des 605 m² großen Grundstücks befindet sich eine Doppelgarage.
Das Erdgeschoss besticht durch den großzügigen Wohn-/Essbereich mit Zugang zur Terrasse. Die Einbauküche ist im Kaufpreis enthalten. Neben dem Eingangsbereich liegen eine Garderobe sowie ein Gäste-WC.
Im Obergeschoss befinden sich ein Kinderzimmer, ein Badezimmer mit Wanne sowie ein Badezimmer mit Dusche und WC. Das Schlafzimmer wird aktuell durch einen Kleiderschrank in den Schlafbereich und den Ankleidebereich geteilt. Von hier aus gelangt man auf den Südwest-Balkon.
Zusätzlich zu den 127,7 m² Wohnfläche im Erd- und Obergeschoss wurde im Dachgeschoss ein weiteres Zimmer mit einer Nutzfläche von ca. 16,13 m² ausgebaut. Daneben befindet sich ein Speicherraum.
Das Haus ist voll unterkellert.
Lage
Der Bereich um die Gerhart-Hauptmann-Straße und den Römerweg gehört zu den besonders begehrten Wohnlagen im Augsburger Stadtteil Göggingen.
- 5 Gehminuten zur Straßenbahnhaltestelle zur Straßenbahnhaltestelle "Klausenberg"
- 5 Fahrminuten auf die Bundestraße B17
- 10 Fahrminuten in die Augsburger Innenstadt
- 55 Fahrminuten über B17/A8 bis München Pasing
Kindergarten, Schulen, Ärzte, Apotheke, Sparkasse, Restaurants und Einkaufsmöglichkeiten befinden sich in unmittelbarer Nähe:
- 550 m oder 800 m zu Kindergärten
- 700 m zur Grundschule
- 750 m zur Realschule
- 750 m zum Gymnasium
Andere weiterführende Schulen sowie FOS/BOS befinden sich in 3 km Entfernung.
- 850 m zum Supermarkt
- Allgemeinärzte in 350 m und in 600 m Entfernung
- 240 m zum Zahnarzt
- 5 Gehminuten zur Straßenbahnhaltestelle zur Straßenbahnhaltestelle "Klausenberg"
- 5 Fahrminuten auf die Bundestraße B17
- 10 Fahrminuten in die Augsburger Innenstadt
- 55 Fahrminuten über B17/A8 bis München Pasing
Kindergarten, Schulen, Ärzte, Apotheke, Sparkasse, Restaurants und Einkaufsmöglichkeiten befinden sich in unmittelbarer Nähe:
- 550 m oder 800 m zu Kindergärten
- 700 m zur Grundschule
- 750 m zur Realschule
- 750 m zum Gymnasium
Andere weiterführende Schulen sowie FOS/BOS befinden sich in 3 km Entfernung.
- 850 m zum Supermarkt
- Allgemeinärzte in 350 m und in 600 m Entfernung
- 240 m zum Zahnarzt